東京・港区《土浦亀城邸》
連続性を生かした空間と
機能美あふれるしつらえに出合う
|日本の名建築、木の居住空間
時代とともに姿や用途を変えてきた「木」を用いた居住空間。伝統を受け継ぎつつ、近代化の流れにも呼応してきた名作建築の変遷を建築史家・倉方俊輔さんに伺った。今回は、東京都港区にある「土浦亀城邸」をご紹介!
監修・文=倉方俊輔(くらかた しゅんすけ)
1971年、東京都生まれ。大阪公立大学大学院工学研究科都市系専攻 教授。専門は日本近現代の建築史。日本最大級の建築イベント「東京建築祭」の実行委員長も務める。『東京モダン建築さんぽ 増補改訂版』(エクスナレッジ)など著書多数。
連続性を生かした空間と
機能美あふれるしつらえに出合う
フランク・ロイド・ライトの下で設計を学んだ建築家・土浦亀城と、日本初の女性建築家である土浦信子によって、自らの住まいとして設計された住宅である。1935年に東京・上大崎の高台に建てられ、二人が生涯を過ごしたこの住宅は、当時の日本において極めて先進的な都市住宅だった。2024年には、解体時の部材を活用して、青山一丁目のポーラ青山ビルディング敷地内に復原・移築されている。

保存に関する設計を担当した建築家の安田幸一さんは、この住宅の意義について「日本の庶民が建てることのできる『木造による都市型小住宅のプロトタイプ』を目指して、自邸での実証実験に至った」と述べている。
当時、土浦亀城は木造乾式工法※による工業化に取り組んでおり、この住宅の壁も、柱梁による軸組に、規格化した工業材料のボード材を張り付けて組み立てられている。ボード材は2×3尺の寸法に統一され、この寸法体系で窓の大きさや配置も規定されているため、外観と内部空間の双方に秩序がもたらされている。
※水を使用しない材料、方法で施工を行う方式。

一方、共同設計者である信子は、家事労働の負担軽減を主眼に置き、台所や収納空間に革新的な工夫を凝らした。立体的に連なる空間の隅々にまで工夫が行き届き、住まいとしての快適さと美しさが高い次元で両立されている。
木がもたらす軽やかさと、それによって実現する空間の連続性、そして家具との一体感を、従来の形式にとらわれることなく追求したモダニズム住宅である。
line

〈概要〉
5フロアで構成された都市型小住宅で、1995年には東京都指定有形文化財(建造物)に、’99年にはDOCOMOMO Japanによる最初の20選にも選出された。2024年に品川区上大崎から、港区南青山のポーラ青山ビルディング敷地内への復原・移築が完了。この移築は、以前の土地と青山の土地の高低差がほぼ同じだったことで実現した。現在は一般公開もされ、予約すれば見学も可能
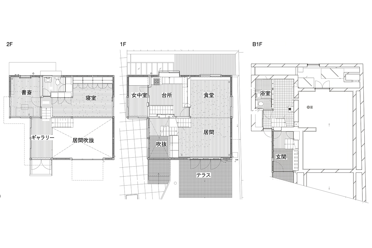
〈図面から見る土浦亀城邸〉
吹き抜けの居間を中心に、地下1階から地上2階まで、中2階を含む5層のフロアが階段によって立体的に連なり、限られた敷地の中で居住空間の広がりとプライバシーの確保を両立している
〈建築データ〉
住所|東京都港区南青山(復原・移築後)
設計|原設計/土浦亀城・信子 復原・
移築設計/安田アトリエ
敷地面積|2465.81㎡
建築面積|66.39㎡
延床面積|191.36㎡ 地下1階86.84㎡(敷地、建築、延床面積は復原・移築時)
構造|木造(一部RC造)地下1階地上2階建
施工|秋山組、鹿島建設(復原・移築)
用途|住宅
竣工|1935年、
2024年(復原・移築)
〈施設データ〉
問|www.po-realestate.co.jp
営業時間|−
休館日|−
料金|1500円※月に2日、水・土曜にガイドツアーを実施(定員15名、予約制)
www.cosmetic-culture.po-holdings.co.jp
01|臥龍山荘(愛媛)
02|八竹庵(京都)
03|鳳明館 本館(東京)
04|旧山本家住宅(兵庫)
05|旧伊庭家住宅(滋賀)
06|上杉記念館(山形)
07|土浦亀城邸(東京)
08|旧イタリア大使館 別荘(栃木)
09|猪股邸(東京)
10|護松園(福井)
11|港区立伝統文化交流館(東京)
12|SOWAKA(京都)
text: 倉方俊輔 photo: 土浦亀城アーカイブズ
2025年9月号「木と生きる2025」



































