東京・文京《鳳明館 本館》
銘木を駆使した大工の技と
遊び心にあふれる和風建築
|日本の名建築、木の居住空間
時代とともに姿や用途を変えてきた「木」を用いた居住空間。伝統を受け継ぎつつ、近代化の流れにも呼応してきた名作建築の変遷を建築史家・倉方俊輔さんに伺った。今回は、東京都文京区にある「鳳明館 本館」をご紹介!
監修・文=倉方俊輔(くらかた しゅんすけ)
1971年、東京都生まれ。大阪公立大学大学院工学研究科都市系専攻 教授。専門は日本近現代の建築史。日本最大級の建築イベント「東京建築祭」の実行委員長も務める。『東京モダン建築さんぽ 増補改訂版』(エクスナレッジ)など著書多数。
一つとして同じ部屋はない、
銘木をひき立てる和風建築

かつて下宿街や旅館街として賑わった文京区本郷。この地で、いまなお木の建築のおもてなしの心を伝える存在が、「鳳明館 本館」である。
明治時代に下宿として創業し、戦前は下宿兼旅館として営業、第二次世界大戦後に旅館として再出発した本館は、建築好きの、いわゆる普請道楽の主人が1936年に建物を買い取ったことで、他に類を見ない空間に生まれ変わった。戦後に改築された各室は、ひとつとして同じ部屋がない、宿泊者が楽しめるつくりになっている。

「朝日の間」にはケヤキの床柱が立ち、それらを天井近くの曲がった材で架け渡している。天井も中央部が緩やかな弧を描く意匠が施されるなど、手の込んだ構成。主人は市場で気に入った木材を見つけては、大工と木の特徴に合わせて室内のデザインを決めたという。
「ゑびすの間」は縁起のよいもの尽くしで、天井は末広がりの傘を模し、床柱は昇り龍を思わせるザクロの木。打出の小槌のかたちの窓には、釣りをする恵比寿さまの組子細工も。

銘木と呼ばれる木材は、江戸時代から尊ばれていたが、近代に入ると、さらにさまざまな種類が市場で流通するようになる。一つひとつの材を引き立て、訪れる人にいかに喜んでもらうか。木をめぐって施主と大工職人が抱く思いもまた、日本の伝統である。
line

〈概要〉
築125年を超える登録有形文化財。建設当時は下宿として、その後下宿兼旅館として営業し、戦後は旅館として改築。この改築をした際には、多種多様な貴重な木材・造作材が使用された。本館の隣には、東京都選定歴史的建造物である「台町別館」、徒歩圏内には、団体旅館として建築された「森川別館」も。現在では、テレワークや女子会ができる日帰りプランなど、多種多様な利用が可能に。
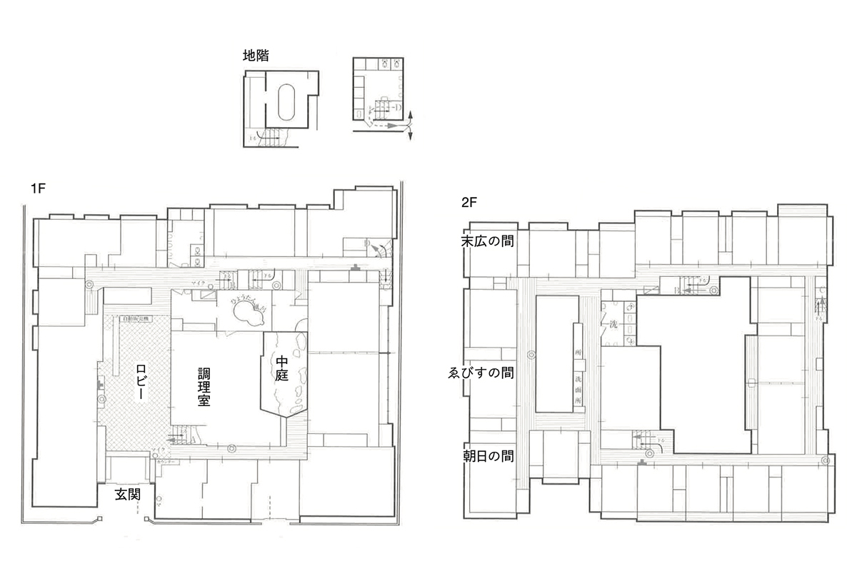
〈図面から見る鳳明館 本館〉
かつては中庭に面して部屋が並び、現在のロビーも旅館として改築された際に屋根をかけた箇所。一般的な旅館と異なり、客室に前室がほとんどないことも、下宿時代の名残を伝える
〈建築データ〉
住所|東京都文京区本郷5-10-5
設計|不明
敷地面積|811.72㎡
建築面積|1193.75㎡
延床面積|−
構造|木造地上2階地下1階建、瓦葺
施工|不明
用途|下宿
竣工|1898年
〈施設データ〉
Tel|03-3811-1181
営業時間|9:00~21:30
定休日|水・木曜、12月29日~1月3日
料金|各種日帰りプランあり
www.homeikan.com
01|臥龍山荘(愛媛)
02|八竹庵(京都)
03|鳳明館 本館(東京)
04|旧山本家住宅(兵庫)
05|旧伊庭家住宅(滋賀)
06|上杉記念館(山形)
07|土浦亀城邸(東京)
08|旧イタリア大使館 別荘(栃木)
09|猪股邸(東京)
10|護松園(福井)
11|港区立伝統文化交流館(東京)
12|SOWAKA(京都)
text: 倉方俊輔 photo:写真=傍島利浩
2025年9月号「木と生きる2025」



































