《LeTAO/ルタオ》の新たな挑戦
「旧小樽倉庫」が文化観光拠点に生まれ変わる!②
|小樽のまちづくり
江戸時代、莫大な富を生んだニシン漁場として栄え、明治期の官営幌内鉄道開通などを経て繁栄した北海道・小樽。いまも多くの人や物が行き交う観光商業都市で、歴史的建造物を守りつつ現代に生かすまちづくりが進行中。そのひとつが、2024年10月に南側が「ルタオ運河プラザ店」として生まれ変わった「旧小樽倉庫」だ。
ルタオ運河プラザ店の
美味しい歩き方

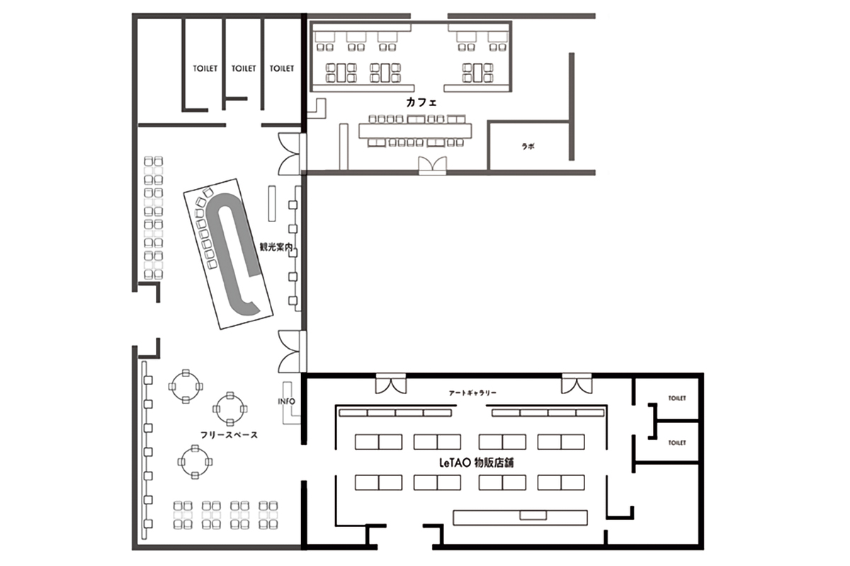
総面積1726㎡の広大な敷地に、一番庫、二番庫、三番庫と3つの木骨石造倉庫と中庭、玄関口となる前庭がある。三番庫は今春、カフェ・レストランとしてオープンする予定だ
歴史を生かすというマインドは、ルタオ運河プラザ店にも受け継がれている。たとえば空間設計では、歴史的な木骨石造建築の雰囲気をそのまま残した。
また、運河プラザ時代からの市民に開かれた場所として、休憩所やイベントスペースの機能を継続。さらに小樽の歴史に触れられるヒストリーギャラリーや地元アーティストの作品を展示するスペースを設けたりと、軸足を“地元”に据えている。

バースペースでは、オリジナルのカクテルやパフェが楽しめる。パフェ「ジャージー&ピスターシュ」は、ウイスキーベースの「ラスティ・ネイル」とともに
一方で、「夜を愉しむ場所が少ない」という街の課題を解決するため、ルタオ初となるバーを設けたりと新たな試みにも取り組む。
立ち上げを指揮したケイシイシイ常務取締役の河越信太朗さんは「小樽はさまざまな文化を取り入れて発展してきた街。いまもその魅力と価値を保ち続ける小樽に倣い、同店も『ノスタルジック・モダン』をコンセプトとし、歴史を大切にしながら新しい価値を生み出し続ける場所でありたいと考えています」と笑顔で抱負を話す。
市民とともに歩み続けてきた存在、そのスピリッツを受け継ぎながら生まれ変わった小樽のシンボルへ、ぜひ足を運んでみてほしい。
line


ルタオ運河プラザ店
住所|北海道小樽市色内2-1-20
Tel|0134-64-1001
営業時間|【一番庫】フリースペース10:00~22:00、テイクアウトコーナー10:00~22:00(L.O.21:00)、バーコーナー13:00~22:00(L.O.21:00) ※パルフェ、カクテルは18:00~ 【二番庫】ショップ10:00~18:00
定休日|なし
www.letao-brand.jp

小樽とルタオのこれから
≫次の記事を読む
text: Tomoko Homma photo: Kenji Okazaki
2025年3月号「ニッポンのまちづくり最前線」



































